Ime: A.B.S. Silo- und Förderanlagen GmbH
Adresa: Industriepark 100, 74706 Osterburken
E-mail: info@abs-silos.de
Web stranica: https://abs-silos.de/
Europski proizvođač: Da
Otvoreno pon-čet od 7 do 17 sati; pet 7-16 h; Sub 9-12 sati
A.B.S. Silos za pelete Flexilo Standard - 1,3 x 1,3 m / 2,0 - 2,1 m je na zalihi i bit će poslano čim ponovno bude dostupno
Die Bearbeitungszeit beträgt in der Regel 1 Werktag. Die Lieferzeit für Paketware ist 1-3 Werktage. Für Speditionsware ist die Lieferzeit 3-5 Werktage. Die Leiferzeiten außerhalb Deutschlands sind abweichend.
The A.B.SFlexilo Standard silos za pelete je provjereni svestrani uređaj s klasičnim dizajnom i konusnim tkaninskim pražnjenjem. Ova konstrukcija jamči sigurno i ravnomjerno pražnjenje peleta te je idealan za pouzdano grijanje vašeg doma čak i u najhladnijim mjesecima.
Ova vrsta silosa može se kombinirati s gotovo svakom jedinicom za ekstrakciju i, zahvaljujući robusnom, jednostavnom dizajnu, nudi trajno rješenje za privatne i komercijalne primjene.
Flexilo Standard dostupan je u veličinama s kapacitetom punjenja do 9,4 tone. Ovaj model ima konusni izlaz od tkanine, kompatibilan je sa svim kotlovima na pelete i može se pohvaliti dizajnom koji je jednostavan za održavanje. Tipično vrijeme isporuke je 2-3 tjedna.
Klasični dizajn, u kombinaciji s konusnim izlazom od tkanine, osigurava pouzdano ispuštanje peleta i minimizira stvaranje mostova. Njegova visoka kompatibilnost s raznim jedinicama za ekstrakciju čini sustav vrlo svestranim.
Druge prednosti uključuju brzu montažu, niske troškove održavanja i mogućnost spajanja više silosa u kaskadu kako bi se pokrili veći rasponi performansi.
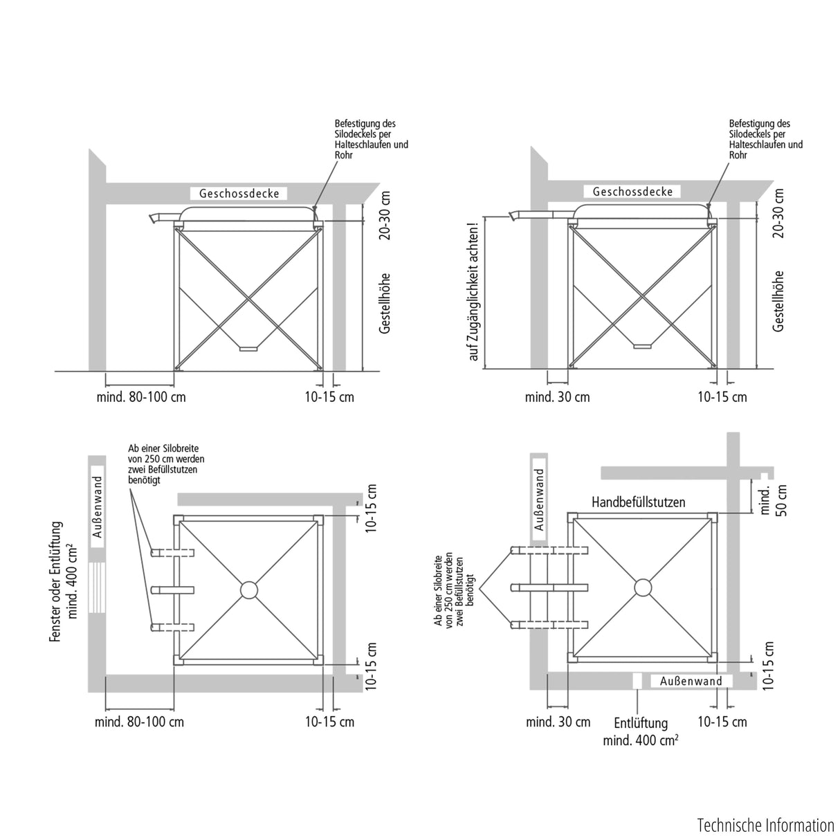
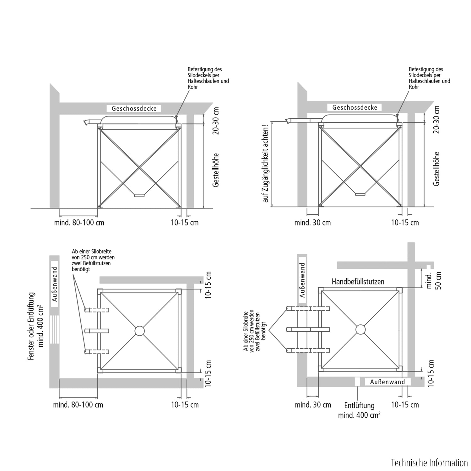
Flexilo Standard je dizajniran za jednostavnu i brzo montažu, omogućujući brzo puštanje silosa u rad. Priključci za ispuh i pražnjenje mogu se spojiti na gotovo svaki bojler, što pojednostavljuje integraciju u postojeće sustave grijanja.
Za optimalnu funkciju i dugi vijek trajanja preporučujemo stručnu ugradnju od strane iskusnog tehničara, posebno ako se nekoliko silosa spaja kao kaskadno rješenje.
Flexilo je dizajniran za jednostavno održavanje i zahtijeva minimalno održavanje. Redoviti vizualni pregledi i izbjegavanje vlage u skladišnom prostoru produžuju vijek trajanja sustava i osiguravaju pouzdano pražnjenje.
U slučaju onečišćenja ili provjere mehanizma za pražnjenje, obično je dovoljan kratki pregled; rezervni dijelovi i servis su brzo dostupni ako je potrebno.
Silos za pelete prikladan je za obiteljske kuće, stambene zgrade, poslovne objekte, farme i komunalne objekte. Zahvaljujući fleksibilnosti veličine i mogućnostima spajanja, može se koristiti u mnogim situacijama grijanja.
Isporuka uključuje silos od tkanine s konusnim ispustom i upute za montažu; ovisno o narudžbi, dodatne jedinice za doziranje ili spirale za kaskadna rješenja dostupne su zasebno. Rok isporuke je obično 2-3 tjedna.
Podrška proizvođača i trgovaca pruža savjete o odabiru, planiranju i montaži, kao i opskrbu rezervnim dijelovima ako je potrebno.
The A.B.SFlexilo Standard silos za pelete idealan je izbor ako tražite provjereno, fleksibilno i isplativo rješenje za skladištenje peleta. Za veće potrebe kapaciteta preporučujemo kombiniranje nekoliko silosa u kaskadu s kontinuiranom spiralom.
Za prilagođenu ponudu i savjet o odgovarajućoj veličini i optimalnom priključku na vaš kotao na pelete obratite se svom specijaliziranom prodavaču.
Zahlungsmöglichkeiten
Ihre Zahlungsinformationen werden sicher verarbeitet. Wir speichern keine Kreditkartendaten und haben keinen Zugriff auf Ihre Kreditkarteninformationen.