Telefon +49(0)39262 878720

E-post: gemashop@gema-net.de

WhatsApp: +49(0)17660429928

  • snabb leverans

  • Gratis hjälp och råd

  • Problemfria returer

  • Öppet 7 dagar i veckan

Anhaltinerring 17, 39439 Güsten

Öppet mån-tors 7-17; Fre 07.00-16.00; Lör 9-12

A.B.S.  |  SKU: HP-FB18

Pelletilo platt golv inklusive ram

Namn: A.B.S. Silo- und Förderanlagen GmbH

Adress: Industriepark 100, 74706 Osterburken

E-post: info@abs-silos.de

Webbplats: https://abs-silos.de/

Europeisk tillverkare: Ja

Normalpris 2.875,00 €
inkl. MwSt. Kostenloser Versand innerhalb Deutschland

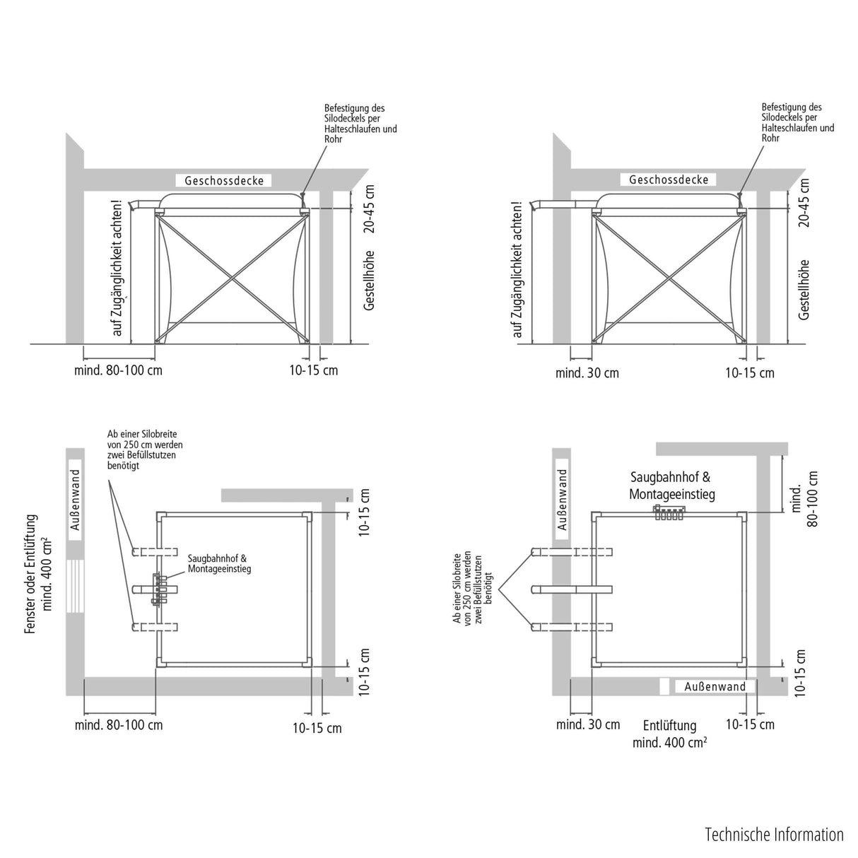
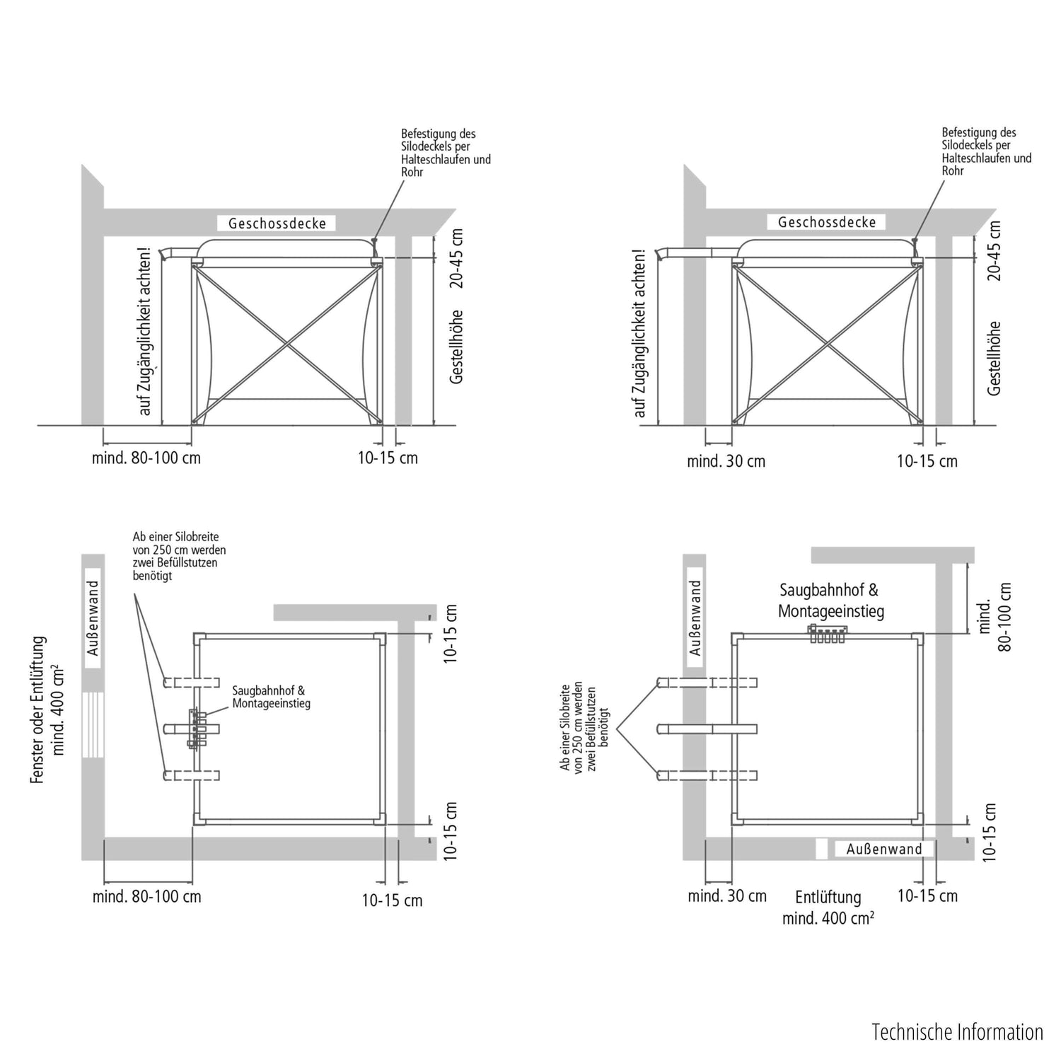
Ram
Rumshöjd

Leverans och frakt

Bearbetningstiden är vanligtvis 1 arbetsdag. Leveranstiden för paketvaror är 1-3 arbetsdagar. För fraktsända varor är leveranstiden 3-5 arbetsdagar. Leveranstiderna utanför Tyskland är olika.

Beschreibung

Pelletssilo PLAT BOTTEN inklusive ram

A.B.SPelletssilo med platt botten - Attraktivt prissatt lösning för hela utrymmet - inget mer är möjligt

från A.B.S.

Med den kubformade Flexilo® FLACHBOTTOM (patentnummer 10 2009 033 230) från A.B.SMellan 80 och 90 % av pelletsförvaringsutrymmet utnyttjas. Detta möjliggör optimal och platsbesparande förvaring av träpellets i nästan alla rum, även med låg takhöjd.

Höjdpunkter från Pelletssilo

  • Högsta fyllningsvolym: Upp till 90 % av pelletsförvaringsutrymmet kan utnyttjas
  • Enkel och snabb installation
  • Avloppsmunstycke för manuell tömning som standard
  • Suganslutningar, monteringsåtkomst, manuell borttagning och påfyllningsledning kan monteras på varje sida enligt dina specifikationer
  • Specialmått för varje applikation

Leveransomfattning Flexilo® FLACHBOTTOM HP 18 inkl. ram

  • Silopåse med insydd baffel
  • Galvaniserad stålram som instickssystem inklusive monteringsmaterial
  • Lämpligt påfyllningssystem (sida som standard)
  • Inkl. utsug: 5 sugsonder, manuell omkopplingsenhet och sugslangar inuti
  • Stödkonstruktion för silolock (rör måste tillhandahållas på plats)
  • Monteringsanvisningar

Betalning & Säkerhet

Betalningsalternativ

  • American Express
  • Apple Pay
  • Bancontact
  • BLIK
  • EPS
  • Google Pay
  • iDEAL
  • Klarna
  • Maestro
  • Mastercard
  • MobilePay
  • PayPal
  • Przelewy24
  • Shop Pay
  • Union Pay
  • Visa

Din betalningsinformation behandlas säkert. Vi lagrar ingen kreditkortsinformation och har inte tillgång till din kreditkortsinformation.

Kontakta oss

5
reviews
See all reviews